掌握中古屋翻新眉角:拆牆、轉向與異材質活用,創造開闊趣味的家屋
編輯 Jean Ru|圖片提供 維度空間設計有限公司
|
Home Data 設計公司:維度空間設計有限公司 設計師:馮彥鈞(Bill Fong) 設計風格:混搭風 房屋狀況:中古屋 空間坪數:21坪 空間格局:4房1廳2衛 主要建材:仿飾清水模沙漿、黑鐵件、實木貼皮、實木板
|
老屋翻新熱潮不斷,除了基礎工程的整頓、全新材料的安排,如何在既有空間裡重整格局、梳理動線,又能活用材質與色彩,交織出兼具機能且具故事性的私宅,就考驗著設計師的功力了!
此案 21 坪的空間裡,翻轉原有的領域定位,創造出四房坪效;溫潤木紋作為基底,在局部大膽用蘋果綠、芥末黃劃分領域,善用鐵件、磁磚等多元材質,創造出明亮、開放且活潑的靈感私宅,此外,讓我們來看看馮彥鈞設計師如何重新調整格局與動線,創造出超高效能的空間術!
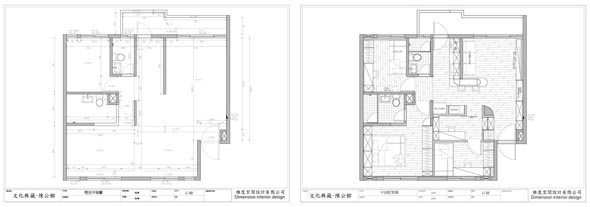
(Before + After)平面圖提供_維度空間設計。
Tip 1. 玄關強化收納,捨棄屏風讓空間更顯開闊
原本的玄關安排穿衣鏡,且透過一道屏風作用的擋牆設計界定內外領域。改造後的玄關,少了穿衣鏡、屏風,右側以木紋收納櫃從玄關延伸至客廳,公領域的情景一目了然,帶來開闊舒心之效。
BEFORE
改造前的玄關。
AFTER
改造後的玄關。
玄關收納延伸串連電視牆。
Tip 2. 雙面櫃與玻璃拉門,納入書房與男孩房
玄關的左側原本銜接書房,且以簡單的門簾界定空間,而外面轉角的餐桌上則佈滿各式各樣的生活雜物。設計師利用雙面櫃圍塑出外部的開放玄關,以及內部的書房、男孩房,並以藍、綠色調作為男孩房與書房的主題,整體視覺更為清爽且不失活潑調性。
BEFORE
改造前的男孩房(左)與書房(右)。
AFTER
改造後的男孩房對望書房。
改造後的書房對望男孩房。
Tip 3. 電視牆與沙發背牆互換,一目了然空間動向
將原有的電視牆與沙發背牆對調,讓玄關櫃體一路延伸置電視牆,整併收納機能,而乘坐在沙發上的屋主也可留意玄關、後方餐廚空間家人的動向,保有絕佳彈性。
BEFORE
改造前的電視牆(左)與沙發背牆(右)。
AFTER
改造後的電視牆。
改造後的沙發背牆。
Tip 4. 拆除廚房隔間牆,餐桌轉彎後串連客餐廚三角地帶
拆除廚房面向公領域的隔間牆,安排一張獨立餐桌銜接沙發背牆與廚房空間,餐桌轉彎後,持續銜接廚房領域的工作臺,串連檯面功能;原本電器櫃位子調整為冰箱,電器櫃則順著動線往內安排。
BEFORE
改造前的電器櫃(左)與廚房(右)。
AFTER
廚房隔牆拆除,餐桌以橫放方式串連客餐廚空間。
改造後的廚房。
相關閱讀

訂閱House情報站RSS