貼合生活的設計 實用暖心熟齡宅
作者_幸福空間 圖片提供_YS暘昇國際室內裝修工程有限公司
家中若有年紀稍長的長輩,於場域規劃以及細節的掌控上,就必須更加悉心規劃。本案除了利用櫃體打造簡約俐落的空間,避免過多阻礙動線的傢俬燈飾外,地坪皆選以防滑、無接縫材質鋪設,並於走道壁面設計輔助扶手方便長輩活動,李宗育設計師考量屋主的生活需求,提升居家安全性,成功構築無障礙的溫馨宜居住所。
實用機能方面,YS暘昇國際室內裝修為滿足屋主訴求,公共空間以門片櫃與層板交錯設計,不僅達到收納儲物需求,同時也豐富了空間視覺變化,並利用深淺木皮創造場域溫淳質樸調性。私領域則以壁紙依循家人喜好,打造各具特色的睡眠空間,佐以系統櫃安排收納機能,形塑實用美型兼具的質感宅邸。
CASE DATA
居住成員:大人x3、傭人x1
房屋坪數:40坪
設計風格:現代風格
房屋類型:標準格局
空間格局:4房、2廳、2衛
主要建材:木皮、大理石、壁紙、木地板、系統櫃、灰玻、噴砂玻
▲公領域
整體空間俐落不零碎,富有敞朗氣勢同時亦保有質樸溫潤感,並以木皮鐵件元素串聯場域氛圍,圍塑設計主題的完整性。
▲玄關
穿透式端景櫃以及灰鏡設計,使玄關更加通透明朗,再搭配花布穿鞋椅完美勾勒場域視覺調性。
▲穿透設計
運用玄關端景巧妙界定玄關、客廳與餐廳場域,以層板創造穿透視感,同時亦增加了展示儲物的空間。
▲場域調性
李宗育設計師於家具配色與協調性方面更是細膩著墨,以異材質交織搭襯,創造空間層次,也使場域呈舒適溫淳氣氳。
▲客廳
採深淺木皮與壁紙安排電視牆,並將電箱藏於主牆後方空間,維持立面簡約清爽樣貌。
▲餐廳
餐廳除了收納餐櫃與端景平台,YS暘昇國際室內裝修亦善用窗戶右側的畸零角落,提升空間儲物機能。
▲餐廚區
收納餐櫃的左側為廚房入口,以噴砂玻璃設計門片,使內外空間亦能維持明亮度。
▲廚房
利用櫃體將廚具與大型家電妥善收於立面中,結合大理石花紋壁磚,營造清爽俐落視感。
▲主臥
床頭主牆以壁紙鋪排使整體立面表情更為豐富,清爽俐落的櫃體滿足臥房內的儲物機能。
▲空間氛圍
客房與長親房以簡約設計打造舒適的睡眠空間,僅採不同色調與花樣的壁紙,便使空間瀰漫截然不同的氛圍調性。
▲主衛浴
主臥衛浴壁面採用磁磚方便日後清潔,而地坪則鋪以粗面止滑的建材降低意外發生率。
▲客衛浴
內外地坪設計1cm的高低差,完善處理浴室排水機能方面的疑慮,並配置防滑地壁磚,提升居家安全性。
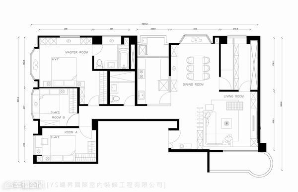
▲平面圖
Designer DATA
設計公司:YS暘昇國際室內裝修工程有限公司
設計師:李宗育
電話:02-2392-4783
地址:台北市仁愛路二段5號6樓
電子信箱:tim888tim888@yahoo.com.tw
快到【設計師精采個案】看更多:
http://www.hhh.com.tw/modules/gs/designer.php?hdesigner_id=301
《延伸閱讀》













訂閱House情報站RSS